Общее представление об отсечном клапане
Запорный клапан устанавливают для механического вмешательства в свободное перемещение жидкостей и газов по трубопроводу. Остановка и освобождение магистрали от содержимого могут понадобиться из-за протечек, разгерметизации, критических перепадов температур или давления. То есть содержимое либо полностью прогоняется из участка, либо перекрывается его движение.
Устанавливаются приборы на магистрали с газами, нефтепродуктами, горячей и холодной водой. Это могут быть как бытовые инженерные коммуникации, заправочные станции, так и более конструкции промышленного масштаба или, например, городской теплосети.
Запорный клапан
Существуют одноразовые приборы, которые оснащены сменными клапанами или подлежат полной замене после срабатывания. Их изготавливают, как правило, из пластика. Многоразовое металлическое оборудование пользуется большим спросом, так как характеризуется длительным сроком службы.
Конструктивные особенности
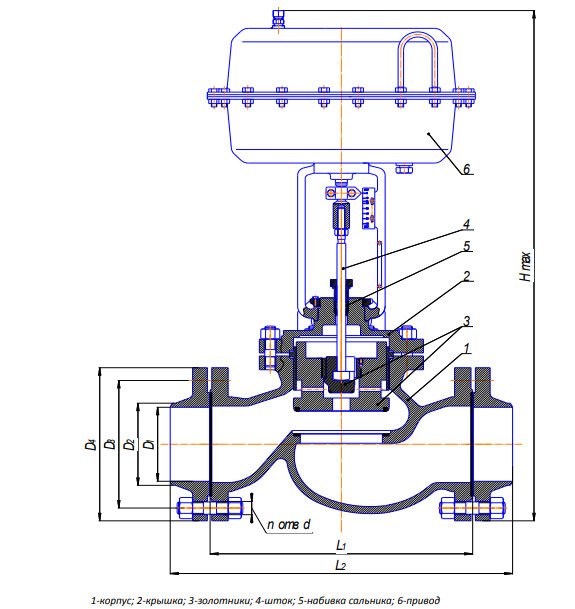
В основе прибора лежат литой корпус, седло и крышка. Их изготавливают из чугуна, оцинкованной стали, латуни или полимерных материалов с высокими показателями прочности. Второй элемент предназначен для установки клапана в трубопроводе.
Затворный механизм представлен следующим образом:
- пружина, приводящая прибор в действие (затвор и возврат);
- шток, отвечающий за динамику клапана;
- впитывающая прокладка, предотвращающая образование конденсата и протечки.
За срабатывание устройства отвечают электрический или пневматический приводы. Управление клапаном производится двумя способами: вручную обслуживающим оператором или автоматически. Без участия человека срабатывание происходит, как правило, за счет встроенных датчиков.
Устройство с датчиком
Принцип работы
Функционал отсечного прибора сводится к тому, чтобы содержимое трубопровода прекратило свое движение на конкретном участке или по магистрали в целом. Клапан отсечного типа при этом должен перекрывать поток оперативно, чтобы минимизировать риск аварий. Вот несколько причин их возникновения:
- нарушения технологии монтажа трубопровода, фильтров;
- несоблюдение требований по технике безопасности;
- окончание срока службы составляющих компонентов;
- различного рода неисправности;
- непредвиденное изменение давления или температуры внутри конструкций.
Более практичными считаются приборы, оборудованные специальными датчиками. Это обусловлено автоматическим срабатыванием в течение короткого промежутка времени (от долей секунд до минут). Скорость зависит от характеристик сенсоров и качества настроек оборудования. За последнее отвечает обученный обслуживающий персонал.
Особенности устройства
Конструкция отсечного клапана состоит из седла, с помощью которого он устанавливается в технологической системе. Проток жидкости обеспечивает система подходов, расположенных в боковой части устройства. В центре механизма находится клапанная часть, внутри которой находится прокладка, предотвращающая протечку жидкости и образование конденсата.
Основное отличие отсечного клапана от другой запорной арматуры — автоматическое срабатывание устройства. Привод приходит в действие при изменении параметров системы (например, при падении давления или критическом повышении температуры воды). Изменения рабочих параметров воспринимают приборы контроля и учета, оснащенные чувствительными встроенными датчиками.
Система настроена на определенный диапазон температур, давления и других физических параметров. В зависимости от уровня чувствительности датчиков привод может срабатывать практически мгновенно или через несколько секунд/минут, перекрывая аварийный участок системы. От чувствительности датчиков зависит скорость срабатывания отсечного клапана. На ответственных участках системы предотвращение аварии может зависеть от доли секунды, что требует от инженеров тщательной настройки оборудования.
Положительные стороны использования отсечного клапана
Сравнительно с вентилями, которые изначально выполняли задачу перекрытия движения жидкостей и газов, запорная арматура оснащена различного рода механизмами автоматического реагирования. Оно заключается либо в подаче сигналов операторам, либо непосредственно перекрытие свободного прохода по трубопроводу.
Запорный вентиль
Сегодня приборы исключают некоторые недостатки прототипного оборудования. Например:
- из-за грязевых потоков и примесей исключается ложное срабатывание;
- более герметичные корпуса лучше справляются с незначительными перепадами давления;
- скорость срабатывания минимизирована до нескольких секунд.
Кроме того, современные отсечные клапаны перекрывают движение в обоих направлениях. А в конструкциях имеются дополнительные элементы. Например, пружинные прокладки из силикона или регулировочные шайбы.
Разновидности
Газовый клапан-отсекатель имеет несколько разновидностей, которые отличаются между собой по принципу действия. Выделяют такие два типа, как нормально открытый (НО) и нормально закрытый (НЗ). Принцип действия НО достаточно прост. Если напряжение отсутствует, то клапан все время будет оставаться открытым. Отличие же НЗ клапана в том, что отсутствие напряжения будет, наоборот, перекрывать клапан. Открывать его после этого придется уже вручную.
Оба эти прибора относятся к электромагнитным клапанам прямого действия. Это значит, что закрытие произойдет из-за воздействия электромагнита, а отсечение потока рабочей среды будет отмечено с обеих сторон трубопровода.
Однако у таких приборов имеется существенный недостаток, который кроется в том, что рабочий диапазон давлений и диаметров достаточно мал.
Основные типы приборов
Трубопроводная арматура различается конструктивно и по назначению. Так, выделяют нормально открытые устройства. Они отвечают за работу с потоком относительно движения. Нормально закрытые запорные приборы, как правило, управляются вручную и открываются в аварийной ситуации, чтобы выпустить содержимое резервуара или магистрали.
Отдельно рассматриваются приборы для воды, нефтепродуктов и газа. Срабатывание может быть осуществимо с помощью механической нагрузки, пружинного механизма, пневматического или магнитного привода. Различны приборы также по характеристикам, способам подключения, работе в одном или в двух направлениях. А в зависимости от используемых материалов, производители предлагают одноразовые и многоразовые отсечные клапаны.
Угловой
Угловой клапан
Область применения включает магистрали для жидких продуктов, протекающих под сильным давлением. Корпус оборудования изготавливается из высокопрочной стали. Оборудование имеет поршневый гидравлический привод. Принцип работы рассчитан на поступающее и раздаточное движение.
Проходной
Актуальна установка запорного клапана прямого действия в трубопроводах, где существует риск возникновения протечек. Содержимое в этом случае может быть как чистым, так и с примесями или загрязнениями, пузырьковыми включениями. При этом микрочастицы не оседают и не накапливаются в узловых соединениях. Относительно материалов главными критериями являются ударопрочность, износостойкость и защита от коррозионного повреждения.
Двухседельный
У этого прибора два посадочных седла и плунжера. Установка допускается на трубопровод с большим поперечным сечением и высокими перепадами давления. Применяются двухседельные запорные клапаны в условиях взрывоопасности и активных химических реакций.
Односедельный
Такое запорное устройство устанавливается на трубопроводах относительно малого диаметра. То же касается амплитуды перепадов невысокого давления. В приборе встроен один плунжер, который перекрывает поток в одном направлении.
Односедельный клапан
Автоматический
Такого типа отсечные клапаны, как правило, имеют паровую заслонку. Она срабатывает в течение 1,5-10 секунд после возникновения неполадок. Также они характеризуются долговечностью и минимальной подверженностью деформациям. Для большей эффективности приборы оснащают специальными контролерами. Они реагируют на изменения показателей давления, температуры, в составе содержимого, которое должно оставаться постоянным.
Типы отсечных запорных устройств
Классификация запорных устройств основывается на нескольких ключевых параметрах. По принципу действия их разделяют на:
- Нормально открытые — в обычном состоянии устройства находятся в открытом положении, беспрепятственно пропуская ток рабочей среды. При срабатывании привода клапан закрывается, перекрывая поток воды или газа.
- Нормально закрытые — до возникновения аварийной ситуации клапан находится в закрытом состоянии, а при срабатывании привода открывается и выпускает жидкость или газ. Некоторые виды устройств требуют ручного открывания задвижки.
По типу системы и рабочей среды можно классифицировать отсечные клапаны на устройства для воды и газа. Клапаны для перекрытия газа делятся на односедельные и двухседельные. Первый тип отсекателя перекрывает систему только с одной стороны трубопровода, когда прекращается отбор газа. Двухседельные клапаны перекрывают поток газа по обе стороны газопровода при повышении/падении давления в системе.
Рекомендуем ознакомиться: Как сделать переход при замене труб с металла на полипропилен?
Отсечные клапаны для жидкой рабочей среды делятся на четыре типа:
- проходные;
- угловые;
- односедельные;
- двухседельные.
По способу закрывания клапаны также подразделяются на четыре категории:
- устройства, закрывающие поток рабочей среды при помощи грузового воздействия;
- устройства с пружинным механизмом;
- приборы с пневматическим приводом;
- клапаны с электромагнитным приводом.
Важно! Современные отсечные клапаны срабатывают в среднем за 10-15 секунд после возникновения аварийной ситуации. Но при выборе устройства необходимо обращать внимание на скорость реагирования, т.к. можно по ошибке купить устройство старого типа, которое срабатывает гораздо медленнее и отличаются меньшей герметичностью.
Рекомендации по выбору отсечного клапана
Один из главных критериев состоит в скорости срабатывания прибора. Особенно, если поток жидкости или газа происходит под высоким давлением. Однако, это не единственный параметр. Также важно следующее:
- Область применения. Под этим понятием скрываются протекающие вещества, их состав, степень агрессивности.
- Условия эксплуатации включают давление и температуру.
- Пропускная способность подразумевает поперечное сечение магистрали.
- Герметичность. От этого показателя зависит надежность оборудования.
- Прочность сказывается на долговечности приборов.
Чугунный клапан
При выборе отсечного клапана учитываются конструктивные особенности и действие в одном или двух направлениях. Относительно материалов рассматриваются не только корпус, но и прокладки, сальники, уплотнители.
На что обратить внимание при выборе клапана
Выбирать отсечной клапан должен человек с инженерно-техническим образованием, т.к. обывателю сложно сориентироваться в разнообразии устройств. Профессионалы при выборе и установке отсечного клапана ориентируются на следующие параметры:
- Степень герметичности — важная характеристика для инженерной системы. Современные виды устройств оснащены витыми уплотнительными прокладками, которые предотвращают протечку жидкости и газа.
- Скорость срабатывания — самый важный параметр работы устройства, особенно критичный для высоконапорных инженерных систем. Чем быстрее срабатывает клапан во время аварийной ситуации, тем меньше будет потеря воды или технической жидкости.
- Материал изготовления — сталь или другие прочные сплавы, а также дополнительные сальники и уплотнители. Самое важное — это способность материала противостоять высоким температурам и давлению без утраты физических и технологических свойств.
- Тип рабочей среды. Это может быть чистая, слабо или сильно загрязненная вода, нефтепродукты, газ и другие среды. Современные отсекатели устроены таким образом, что на них не влияет наличие механических частиц в воде, а также плотность, вязкость и текучесть рабочей среды.
Внимание! Цена является второстепенным параметром при выборе запорного оборудования, особенно в технических сложных и ответственных инженерных системах. Экономия чревата сокращением сроков службы и межсервисного периода работы оборудования.
Ценовой диапазон отсекающих клапанов зависит от производителя, а также размеров модели. Небольшие устройства с электромагнитным приводом до 20 мм могут стоить в среднем 1,9-2 тысяч рублей. Клапаны до 100 мм могут обходиться покупателю дороже — от 20 до 30 тысяч рублей.
Рекомендуем ознакомиться: Как правильно закрепить канализационную трубу к стене — виды крепежей и способы монтажа
По типу устройства выбор клапана обстоит сложнее, т.к. у каждого типа инженерной системы имеются определенные параметры работы, которые воздействуют на запорное оборудование. Например, для простых водопроводных систем можно остановиться на простом проходном клапане, которого достаточно для предотвращения утечки воды при внештатной ситуации. Но для систем, в которых вода циркулирует под высоким давлением, лучше выбрать угловой двусторонний отсекатель.
Правила установки отсечного клапана
Монтаж запорного прибора производится по инструкциям от изготовителя. Самостоятельная установка допускается только на водопровод в частном секторе. При этом гарантийное обслуживание и работа прибора могут не соответствовать заявленному из-за неопытности установщика. Поэтому правильным будет доверить работу специалистам.
Монтируют затворные клапаны в доступных местах для обслуживания или замены оборудования. При этом должны быть исключены участки, в которых могут образовываться застои и гидравлические “мешки”. Также относительно места имеются правила:
- на вертикальных резервуарах рассматривается верхнее днище (или на шлемовой трубе);
- на горизонтальных – в зоне паровой фазы (верхняя образующая цилиндра).
Важным моментом является исключение замерзания содержимого трубопровода в узловых соединениях. А поперечное сечение патрубка должно быть больше суммарного аналогичного показателя относительно установленных на нем клапанов в 1,25 раз.
Соотношение диаметра патрубка и клапана
Особенности применения предохранительных устройств
- Каждое установленное защитное устройство перед горелкой (быстросъемное соединение, клапан обратного удара) затрудняет проходимость потока газа
- В зависимости от заданного количества необходимого потока газа необходимо использовать различные размеры клапанов обратного удара
- Входящее давление в клапан обратного удара всегда больше чем давление на выходе из клапана обратного удара
- Необходимое рабочее давление (заданное), должно быть доступно на выходе из клапана обратного удара
- Каждый клапан обратного удара внутри устройства от обратного удара при использовании будет загрязнятся, из-за грязного газа, поэтому давление на выходе будет со временем уменьшено
- Большее загрязнение приводит к уменьшению потока газа
- Пропускная способность клапана обратного удара показывает, как долго он может быть использован
- Каждый клапан обратного удара необходимо проверять один раз в год
Советы специалистов по эксплуатации
Использовать оборудования для регулировки потока содержимого магистрали запрещается. Поэтому затворы должны быть в положении полного открытия или закрытия. Во время монтажных работ и обслуживания важно исключить любое засорение внутренней поверхности корпуса и попадание посторонних предметов. Эксплуатация осуществима только в строгом соблюдении инструкций, иное назначение недопустимо.
Моменты, связанные с безопасностью, прописаны в ГОСТах 12.2063-2015 и 32569-2013, в нормах, установленных такими организациями, как Ростехнадзор, Таможенный союз, Евразийская комиссия. Также важно пользоваться средствами индивидуальной защиты. А к обслуживанию приборов, замене допускаются только обученные специалисты с допусками.
Широкое применение отсечные клапаны получили за счет из предназначения. Благодаря этим приборам на магистралях есть шанс локализовать последствия неполадок, исправить их и вновь ввести в эксплуатацию. Это актуально как для инженерных сетей бытового назначения, так и для трубопроводов крупного масштаба.
Клапан-отсекатель гидравлический
Изобретение относится к машиностроению, в частности к запорной трубопроводной арматуре, предназначенной для перекрытия и регулирования потока проходящей среды, и может быть использовано при разработке запорной арматуры, в частности клапанов-отсекателей и приводов для задвижек. Клапан-отсекатель содержит корпус с каналами подвода рабочего тела, подпружиненный шток, выполненный с возможностью осевого перемещения и установленный внутри упомянутого корпуса. Один конец штока выполнен с возможностью обеспечения механического взаимодействия с исполнительным органом запорной арматуры, преимущественно шибером задвижки, а на другом конце штока установлен гидроцилиндр, выполненный с возможностью осевого перемещения вместе со штоком. Внутри указанного гидроцилиндра установлен неподвижный поршень, закрепленный одним концом на корпусе гидропривода и выполненный в виде профилированного цилиндра, преимущественно полого. Каналы подвода рабочего тела соединены с полостью между подвижным гидроцилиндром и неподвижным поршнем. Изобретение направлено на упрощение конструкции гидропривода и клапана-отсекателя в целом, обеспечение автономности его работы, улучшение массово-габаритных характеристик и повышение надежности его работы. 3 ил.
Изобретение относится к машиностроению, в частности к запорной трубопроводной арматуре, предназначенной для перекрытия и регулирования потока проходящей среды, и может быть использовано при разработке запорной арматуры, в частности клапанов-отсекателей и приводов для задвижек.
Известен гидропривод задвижки, содержащий двухполостный гидроцилиндр с поршнем, шток которого механически связан с задвижкой, расположенной между входным и выходным патрубками, а полости гидроцилиндра соединены через распределитель с входным патрубком и линией слива, при этом поршень снабжен стержнем, установленным соосно ему (А.С. СССР N 1420293, кл. F16K 47/02, 1988).
Причиной ограниченных технологических возможностей известного гидропривода является выпуск среды в атмосферу и отсутствие средств фиксации задвижки в промежуточных положениях, т.е. невозможность регулирования проходного сечения задвижки.
Известен гидропривод задвижки, содержащий двухполостный гидроцилиндр с поршнем, шток которого механически связан с задвижкой, расположенной между входным и выходным патрубками, а полости гидроцилиндра соединены через распределитель с входным патрубком и линией слива, при этом он снабжен аккумулятором и обратным клапаном, причем линия слива соединена с полостью аккумулятора, а через обратный клапан — с входным патрубком (Патент РФ 2052701, МПК: F16K 31/122).
Указанный гидропривод действует следующим образом.
Для открытия задвижки включают распределитель. Жидкая среда из патрубка поступает в подпоршневую полость и начинает сливаться из надпоршневой полости по линии через клапан в патрубок. Когда давление в патрубке начнет превышать давление в линии, клапан закроется и слив среды будет происходить в аккумулятор, наполняя его и сжимая находящийся в нем воздух или газ. В крайнем положении поршня, его выступ входит в захват, или магнит притягивает поршень, или стержень притягивается магнитом, чем обеспечивается фиксация задвижки. Затем отключают распределитель, при этом обе полости гидроцилиндра находятся под одинаковым давлением среды, поддерживаемым подпиткой через зазор между штоком и стенкой гидроцилиндра, при этом линия на распределителе заглушена, клапан закрыт. Для закрытия задвижки переключают распределитель. Среда из патрубка поступает в надпоршневую полость и сливается из подпоршневой полости в аккумулятор. Когда давление в аккумуляторе превысит давление в патрубке, открывается клапан и среда из подпоршневой полости и аккумулятора перетекает в патрубок. Отключают распределитель, при этом задвижка будет прижата к седлу давлением среды, при этом обе полости гидроцилиндра находятся под одинаковым давлением. При парообразной среде гидропривод действует, как описано выше, за исключением того, что среда в аккумуляторе конденсируется.
Недостатками является значительная сложность конструкции и низкая надежность работы.
Известен гидропривод запорно-регулирующей задвижки, содержащий двухполостной гидропривод с поршнем, шток которого механически связан с задвижкой, расположенной между входным и выходным патрубками, а полости гидроцилиндра соединены через распределитель с входным патрубком и линией слива, причем поршень снабжен стержнем, установленным соосно ему, при этом он снабжен аккумулятором и обратным клапаном, причем линия слива соединена с полостью аккумулятора, а через обратный клапан с выходным патрубком, кроме того, гидроцилиндр снабжен глухим патрубком с радиальным карманом, а расположенный на поршне стержень выполнен с расположенными на его боковой поверхности впадинами и установлен с возможностью перемещения в полости осевого глухого патрубка, при этом поршень снабжен фиксатором, расположенным в радиальном кармане глухого патрубка с возможностью взаимодействия со впадинами на стержне (патент РФ №2051306, МПК: F16K 31/122).
Указанный гидропривод действует следующим образом.
Шток поршня двухполостного гидроцилиндра механически связан с задвижкой, расположенной между входным и выходным патрубками. Полости гидроцилиндра соединены через распределитель с входным патрубком и линией слива. Поршень снабжен стержнем, установленным соосно ему. Линия слива соединена с полостью аккумулятора, через обратный клапан с выходным патрубком. Гидроцилиндр снабжен глухим патрубком с радиальным карманом. Стержень выполнен с расположенными на его боковой поверхности впадинами и установлен с возможностью перемещения в полости осевого глухого патрубка. Поршень снабжен фиксатором, расположенным в кармане с возможностью взаимодействия с впадинами на стержне.
Известен гидропривод для задвижки фонтанной гидроприводной автоматического закрытия, содержащий двухполостный гидроцилиндр с подпружиненным поршнем, шток которого механически связан с запорным органом задвижки, расположенной между входным и выходным патрубками, при этом в корпусе гидроцилиндра выполнены каналы подвода рабочего тела (Задвижка с гидроприводом. Техническое описание и инструкция по эксплуатации ЗФГ.3.021-00.000 ТО. Воронежский механический , 394055, г. Воронеж, ул. Ворошилова, 22-прототип).
Указанный гидропривод работает следующим образом.
Рабочее тело под давлением подается в надпоршневую полость гидроцилиндра и воздействует на поршень. Поршень со штоком перемещается к центру задвижки, сжимает пружину, при этом запорный орган, в данном случае, шибер, перемещается, и открывает задвижку. Для закрытия задвижки, давление рабочего тела сбрасывается, и поршень со штоком возвращается в исходное положение под действием сил упругости пружины. Шибер при этом также занимает исходное положение и задвижка закрывается.
Основными недостатками данного гидропривода является значительная трудоемкость его изготовления, необходимость стационарных линий управления, сложность конструкции и значительные габаритные размеры, особенно диаметральные.
Задачей изобретения является устранение указанных недостатков и создание клапана-отсекателя гидравлического, применение которого позволит упростить конструкцию гидропривода и клапана-отсекателя в целом, обеспечить автономность его работы, улучшить массово-габаритные характеристики и повысить надежность его работы.
Решение указанной задачи достигается тем, что предложенный клапан-отсекатель гидравлический, содержащий корпус с запорным органом, гидропривод запорного органа с камерой для подвода рабочего тела, поршнем и возвратной пружиной, размещенный на корпусе и взаимодействующий с запорным органом, согласно изобретению, дополнительно содержит автономную систему управления, расположенную на корпусе гидропривода, включающую, как минимум, гидробак рабочего тела с ручным насосом, гидроаккумулятор, распределитель, места для подключения клапана контроля низкого и высокого давления или клапан контроля низкого и высокого давления, места для подключения плавкой пробки или плавкую пробку, клапан электромагнитный, манометр, кран шаровой, соединенные между собой в единую гидравлическую систему, вход которой открывается в гидробак рабочего тела, а выход открывается в камеру для подвода рабочего тела гидропривода, и сбрасывающую давление в гидроприводе клапана-отсекателя по команде клапана высокого или низкого давления или при разрушении плавкой пробки от температурного воздействия, или по команде от клапана электромагнитного, причем вход гидроаккумулятора подключен к гидробаку через обратный клапан, а выход гидроаккумулятора подсоединен к линии, идущей на вход клапана контроля низкого и высокого давления и плавкой пробки и к входу распределителя, выход которого подсоединен к линии клапана контроля низкого и высокого давления и плавкой пробки, при этом клапан электромагнитный подключен между линией сброса с клапана контроля низкого и высокого давления и линией подачи рабочего тела на вход клапана контроля низкого и высокого давления и плавкой пробки, а линия слива соединена с полостью гидробака, при этом гидропривод содержит корпус с каналом подвода рабочего тела, подпружиненный шток, выполненный с возможностью осевого перемещения и установленный внутри упомянутого корпуса, при этом один конец указанного штока выполнен с возможностью обеспечения механического взаимодействия с исполнительным органом запорной арматуры, а на другом конце штока установлен гидроцилиндр, выполненный с возможностью осевого перемещения вместе со штоком, при этом внутри указанного гидроцилиндра установлен неподвижный поршень, закрепленный одним концом на корпусе гидропривода и выполненный в виде профилированного цилиндра, при этом выходная часть канала подвода рабочего тела соединена с полостью между упомянутыми подвижным гидроцилиндром и неподвижным поршнем.
Сущность изобретения иллюстрируется чертежами, где на фиг. 1 показана принципиальная гидравлическая схема клапана-отсекателя, на фиг. 2 показан общий вид клапана-отсекателя, на фиг. 3 показан продольный разрез гидропривода. Навесное оборудование на фиг. 3 условно не показано. На гидравлической схеме сплошной линией показана линия подвода рабочего тела, штриховой — линия дренажа.
Клапан-отсекатель гидравлический содержит корпус 1 с запорным органом 2, гидропривод 3 запорного органа с камерой для подвода рабочего тела 4, поршнем 5 и возвратной пружиной 6, размещенный на корпусе 1 и взаимодействующий с запорным органом 2. Гидропривод дополнительно содержит автономную систему управления, расположенную на корпусе гидропривода 3, и включающую, как минимум, гидробак 7 рабочего тела с ручным насосом 8, гидроаккумулятор 9, распределитель 10, места для подключения клапана контроля низкого и высокого давления или клапан контроля низкого и высокого давления 11, места для подключения плавкой пробки или плавкую пробку 12, клапан электромагнитный 13, манометр 14, кран шаровой 15, соединенные между собой в единую гидравлическую систему, вход 16 которой открывается в гидробак 7 рабочего тела, а выход 17 открывается в камеру 4 для подвода рабочего тела гидропривода. Вход гидроаккумулятора 9 подключен к гидробаку 7 через обратный клапан (не обозначен), а выход гидроаккумулятора 9 подсоединен к линии, идущей на вход клапана 11 контроля низкого и высокого давления и плавкой пробки 12 и к входу распределителя 10. На схеме показаны места подключения и дренажа клапана 11 контроля низкого и высокого давления и плавкой пробки 12.
Выход распределителя 10 подсоединен к линии клапана 11 контроля низкого и высокого давления и плавкой пробки 12 через дроссельную шайбу для контроля температурных расширений гидравлической системы (не обозначена). Клапан электромагнитный 13 подключен между линией сброса с клапана 11 контроля низкого и высокого давления и линией подачи рабочего тела на вход клапана 11 контроля низкого и высокого давления и плавкой пробки 12. Линия слива/дренажа соединена с полостью гидробака 7.
Гидропривод 3 запорного органа 2 содержит корпус 18 с каналами 19 подвода рабочего тела, подпружиненный шток 20, выполненный с возможностью осевого перемещения и установленный внутри упомянутого корпуса 18. Шток 20 подпружинен при помощи рабочей пружины 6. Один конец 21 указанного штока 20 выполнен с возможностью обеспечения механического взаимодействия с шибером 22 запорного органа, в данном случае, задвижки 23. На другом конце штока 20 установлен гидроцилиндр 24, выполненный с возможностью осевого перемещения вместе со штоком 20. Внутри подвижного гидроцилиндра 24 установлен неподвижный поршень 5, закрепленный одним концом на корпусе 18 гидропривода и выполненный в виде профилированного полого цилиндра. Каналы подвода 19 рабочего тела соединены с полостью 25 между упомянутыми подвижным гидроцилиндром 24 и неподвижным поршнем 5.
Предложенный клапан-отсекатель гидравлический работает следующим образом.
Гидропривод устанавливается на запорную арматуру таким образом, чтобы обеспечить механическое взаимодействие конца 21 штока 20 с ответным местом исполнительного органа запорной арматуры, в данном случае, шибера 22 шиберной задвижки 23.
Предварительно, при помощи ручного насоса 8, создается давление гидравлической жидкости, поступающей из гидробака 7, в гидроаккумуляторе 9. Клапан обратный (не обозначен) служит для пропускания жидкости в одном направлении, от ручного насоса 8 к гидроаккумулятору 9. Далее гидравлическая жидкость под давлением поступает на распределитель 10, и после него, в канал 17, который открывается в камеру 4 для подвода рабочего тела гидропривода 3 через канал 19 подвода рабочего тела. Контроль давления в системе осуществляется по манометру 14.
При подаче рабочего тела через канал 19 подвода рабочего тела, рабочее тело поступает в полость 25 между подвижным гидроцилиндром 24 и неподвижным поршнем 5 и начинает воздействовать на торец подвижного гидроцилиндра 24. Под действием рабочего тела, подвижный гидроцилиндр 24 вместе со штоком 20 перемещается к центральной части корпуса задвижки 23, в данном случае, вниз, и сжимает при этом возвратную пружину 6. При перемещении штока 20, шибер 22, механически связанный с концом 21 штока 20, также смещается вниз и открывает проходное сечение задвижки 23. В этом случае, запорный орган 2/шибер 22 находится в положении «Открыто».
Для закрытия запорного органа 2, давление рабочего тела сбрасывается, возвратная пружина 6 начинает возвращаться в исходное состояние и давит одним концом на подвижный гидроцилиндр 24. Подвижный гидроцилиндр 24 под действием силы упругости возвратной пружины 6 перемещается по неподвижному поршню 5 в обратном направлении, торцы подвижного гидроцилиндра 24 и неподвижного поршня 5 сближаются, при этом полость 25 между подвижным гидроцилиндром 24 и неподвижным поршнем 5 уменьшается и рабочее тело выдавливается обратно в канал подвода 19. Вместе с подвижным гидроцилиндром 24 перемещается в исходное положение шток 20 и шибер 22. В конечном итоге, шибер 22 занимает исходное положение, при котором проходное сечение задвижки 23 полностью перекрывается. В этом случае, задвижка 23 находится в положении «Закрыто».
При необходимости открытия задвижки процесс повторяется.
При отклонении давления транспортируемой среды в трубопроводе выше/ниже заданного происходит срабатывание клапана 11 контроля низкого и высокого давления, при этом происходит сброс давления рабочего тела из канала 17, и клапан-отсекатель закрывается.
При повышении температуры окружающей среды в месте установки плавкой пробки 12 клапана-отсекателя гидравлического выше заданной происходит разрушение плавкой пробки 12 и с последующим сбросом рабочего тела из канала 17 в гидробак 7. В этом случае подвижный гидроцилиндр 24 под действием силы упругости пружины 6 перемещается по неподвижному поршню 5, торцы подвижного гидроцилиндра 24 и неподвижного поршня 5 сближаются, при этом полость 25 между подвижным гидроцилиндром 24 и неподвижным поршнем 5 уменьшается и рабочее тело выдавливается в канал подвода 19, далее в канал 17, после чего происходит сброс рабочего тела из канала 17 в гидробак 7, и клапан-отсекатель закрывается.
Для управляемого удаленного закрытия клапана-отсекателя используется электромагнитный клапан 13. При его включении происходит сброс рабочего тела из канала 17 в дренаж, далее — в гидробак 7 и клапан-отсекатель закрывается.
Для управляемого местного закрытия клапана-отсекателя используется кран шаровой 15. При его открытии происходит сброс рабочего тела из канала 17 в дренаж, далее — в гидробак 7 и клапан-отсекатель закрывается.
Проведенные испытания предложенного клапана-отсекателя с гидроприводом подтвердили правильность заложенных конструкторско-технологических решений.
Использование предложенного технического решения позволит создать автономный гидропривод для клапана-отсекателя, применение которого позволит упростить конструкцию, обеспечить автономность работы клапана-отсекателя, улучшить массово-габаритные характеристики привода и повысить надежность его работы.
Клапан-отсекатель гидравлический, содержащий корпус с запорным органом, гидропривод запорного органа с камерой для подвода рабочего тела, поршнем и возвратной пружиной, размещенный на корпусе и взаимодействующий с запорным органом, отличающийся тем, что дополнительно содержит автономную систему управления, расположенную на корпусе гидропривода, включающую, как минимум, гидробак рабочего тела с ручным насосом, гидроаккумулятор, распределитель, места для подключения клапана контроля низкого и высокого давления или клапан контроля низкого и высокого давления, места для подключения плавкой пробки или плавкую пробку, клапан электромагнитный, манометр, кран шаровой, соединенные между собой в единую гидравлическую систему, вход которой открывается в гидробак рабочего тела, а выход открывается в камеру для подвода рабочего тела гидропривода, и сбрасывающую давление в гидроприводе клапана-отсекателя по команде клапана высокого или низкого давления, или при разрушении плавкой пробки от температурного воздействия, или по команде от клапана электромагнитного, причем вход гидроаккумулятора подключен к гидробаку через обратный клапан, а выход гидроаккумулятора подсоединен к линии, идущей на вход клапана контроля низкого и высокого давления и плавкой пробки и к входу распределителя, выход которого подсоединен к линии клапана контроля низкого и высокого давления и плавкой пробки, при этом клапан электромагнитный подключен между линией сброса с клапана контроля низкого и высокого давления и линией подачи рабочего тела на вход клапана контроля низкого и высокого давления и плавкой пробки, а линия слива соединена с полостью гидробака, при этом гидропривод содержит
корпус с каналом подвода рабочего тела, подпружиненный шток, выполненный с возможностью осевого перемещения и установленный внутри упомянутого корпуса, при этом один конец указанного штока выполнен с возможностью обеспечения механического взаимодействия с исполнительным органом запорной арматуры, а на другом конце штока установлен гидроцилиндр, выполненный с возможностью осевого перемещения вместе со штоком, при этом внутри указанного гидроцилиндра установлен неподвижный поршень, закрепленный одним концом на корпусе гидропривода и выполненный в виде профилированного цилиндра, при этом выходная часть канала подвода рабочего тела соединена с полостью между упомянутыми подвижным гидроцилиндром и неподвижным поршнем.